Property Summary
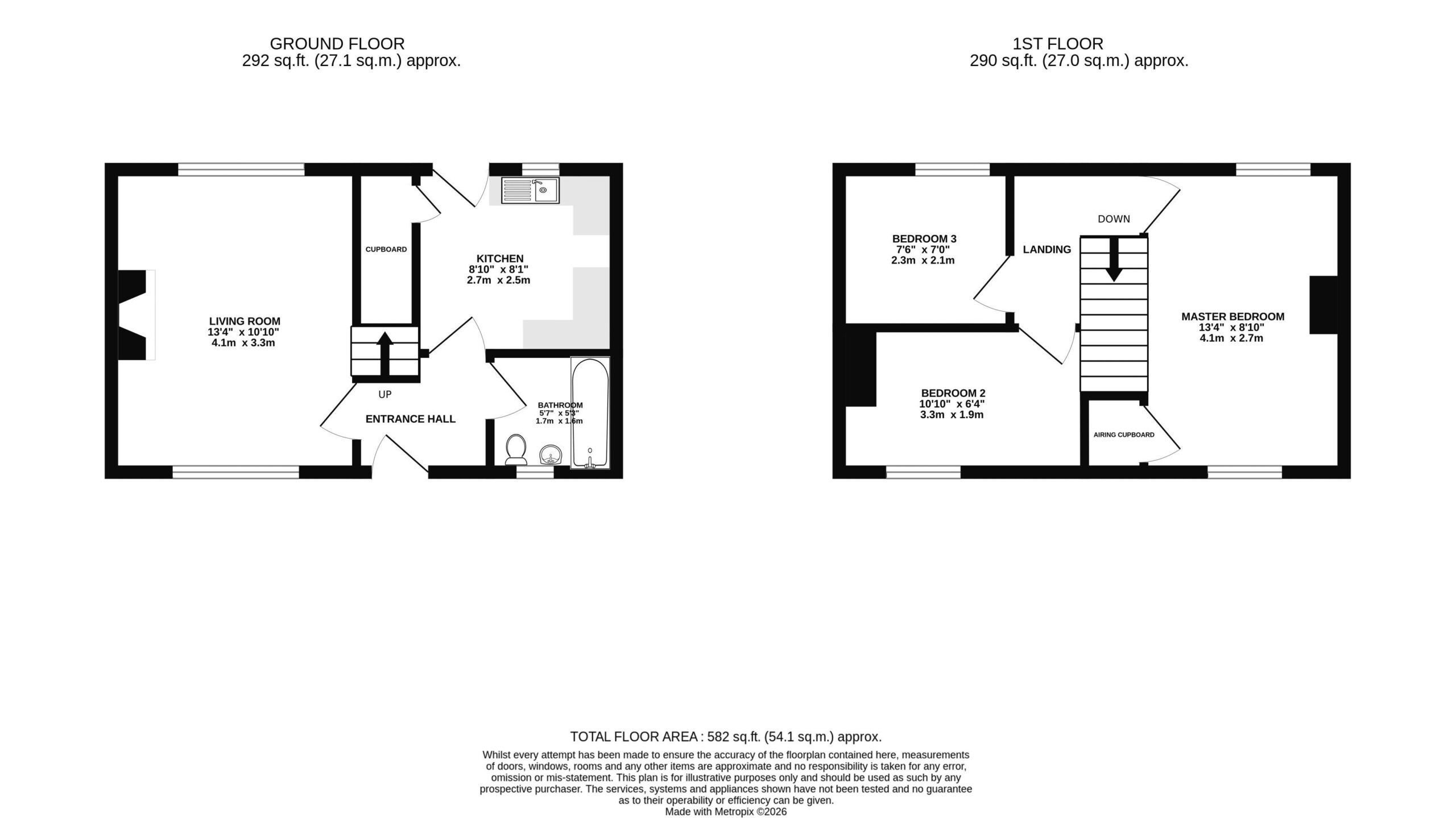
The property opens into a welcoming entrance hall, ideal for coats and shoes. To the left, you’ll find a bright and generously sized living room. To the right is the family bathroom, fitted with a white suite comprising a bath with overhead shower, WC, and pedestal wash basin.
The kitchen completes the ground floor and features a range of base and wall units, along with a useful understairs storage cupboard housing the Worcester boiler. A white uPVC door leads out to the rear garden, which offers a patio area, lawn, shed, and rear access gate—perfect for outdoor enjoyment.
Upstairs, the landing leads to three bedrooms. The master bedroom benefits from an airing cupboard housing the Benchmark vented cylinder and additional shelving. There is a second double bedroom with built-in shelving, along with a single bedroom, ideal as a child’s room, office, or guest space.
The property is ready to move into but would benefit from modernisation throughout, making it an excellent opportunity for buyers looking to add their own style and value. Having previously been a successful rental property, it presents strong potential as both a home or investment.
Situated just off Plymouth Road, Collapark is conveniently located on local bus routes, providing easy access to Totnes town centre and surrounding areas. The property benefits from gas central heating, falls within Council Tax Band B, and has an EPC rating of C. uPVC double glazing is installed throughout.
Viewings are highly recommended and strictly by appointment through Primrose Properties.
Key Features
Property Features
- Three-Bedroom Terraced Home
- Three Bedrooms Upstairs, Including a Master with Airing Cupboard, a Second Double, and a Versatile Single Room
- Rear Garden with Patio, Lawn, Shed, and Rear Gate
- Ready to Move Into but Offers Strong Potential for Modernisation
- No Onward Chain
- Council Tax Band: B EPC: C uPVC Double Glazing Throughout
Make Enquiry
Please complete the form below and a member of staff will be in touch shortly.
Reasonable care is being taken to ensure that the site content is accurate and up-to-date, however, We make no warranties or representations about accuracy, sequence, timeliness or completeness of this webite’s content.
Information for tenants
Our reputation is our guarantee; we pride mourselves on our level of service. We are here to support our clients through their renting journey, read our reviews, it says it all!
With over 30 years collective experience you can be assured that you are using a reputable, knowledgeable and honest agent, with your best interests at heart.
Information for purchasers
Our reputation is our guarantee; we pride ourselves on our level of service. We are here to support our clients through their renting journey, read our reviews, it says it all!
With over 30 years collective experience you can be assured that you are using a reputable, knowledgeable and honest agent, with your best interests at heart.




























